Soembawastraat 82, Amsterdam
Verkocht onder voorbehoud

Soembawastraat 82 , Amsterdam

Vanaf prijs: € 500.000

Caspar Phijffer

Bieden & Wonen - Landelijk

Aanslag gemeentelijke belastingen
Energielabel
Eigendomsbewijs kadaster
Akte uitgifte erfpacht
Meetrapport NEN2580
Splitsingsakte
VVE stukken - recente notulen
VVE stukken - MJOP
VVE stukken - huishoudelijk reglement
Lijst van Zaken
Vragenlijst deel B - Appartement

Biedronde beëindigd
Soort biedronde

Traditioneel bieden

Vanaf prijs

€ 535.500

Verkoopkosten

N.v.t.

# Biedingen

Biedronde start

09-04-'25 10:21

Biedronde sluit

06-05-'25 17:01

Bieder id

#

Naam

Bieding

Voorbehouden

Datum/tijd

Type object

Appartement

Straat & huisnummer

Soembawastraat 82

Postcode & plaats

1095XE Amsterdam

Vraagprijs

€ 500.000

Type prijs

Vanaf prijs

Overdracht

Kosten koper

Gewenste transportdatum

Gewenste transportdatum
-

Woonoppervlakte

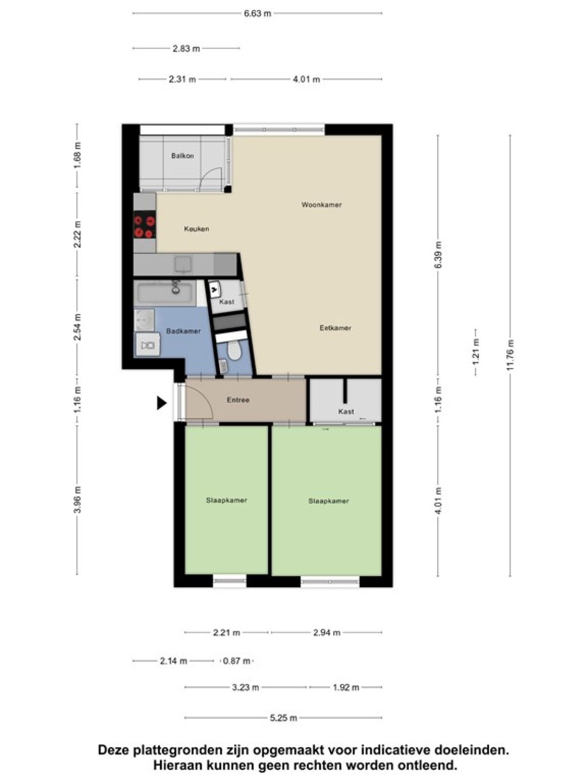
67 m2

Vraagprijs per m2

€ 7.463

Perceeloppervlakte

-

Kamers

3

Slaapkamers

2

Energie label

C

Beschrijving

Te koop: Soembawastraat 82, Amsterdam – Gasloos en energiezuinig wonen in de Indische Buurt

Op zoek naar een instapklaar en energiezuinig appartement in een levendige buurt? Dit lichte en goed onderhouden tweekamerappartement aan de Soembawastraat 82 in Amsterdam biedt modern wooncomfort met alle gemakken van deze tijd. De woning is volledig gasloos, voorzien van HR++ glas, elektrische vloerverwarming en een vernieuwde mechanische ventilatie. Dankzij de actieve Vereniging van Eigenaren en de recent uitgevoerde onderhoudswerkzaamheden is dit een zorgeloze woning waar je direct kunt intrekken.

Kenmerken van de woning:
Gelegen op de eerste verdieping
Volledig gasloos met inductiekookplaat en elektrische vloerverwarming
HR++ glas voor optimale isolatie
Nieuwe mechanische ventilatie en een recent vernieuwde 80L boiler
Plafond infrarood verwarming in de badkamer voor extra comfort
Moderne laminaatvloer (eind 2021)
Actieve en financieel gezonde VvE, beheerd door Accuraat Beheer
VvE-bijdrage: €133,76 per maand
Recent onderhoud: schilderwerk buiten en vernieuwen ramen
Eeuwigdurend afgekochte erfpacht, geen erfpachtcanon

Erfpachtstatus:
Oorspronkelijk erfpachtrecht: Voortdurend erfpacht van de gemeente Amsterdam.
Huidige status: Overgestapt van voortdurend naar eeuwigdurend erfpacht.
Canonbetaling: Afgekocht, dus de eigenaar betaalt geen jaarlijkse erfpachtcanon meer.

Wonen in de Indische Buurt:
Dit appartement ligt in een populaire en dynamische wijk in Amsterdam-Oost. In de directe omgeving bevinden zich de Javastraat met diverse winkels en horecagelegenheden, het Javaplein en de Dappermarkt. Voor ontspanning en recreatie zijn het Flevopark en Oosterpark op korte afstand. Het appartement is uitstekend bereikbaar met het openbaar vervoer, waaronder station Muiderpoort, en diverse bus- en tramlijnen.

Interesse?
Ben je op zoek naar een modern, energiezuinig en instapklaar appartement in een aantrekkelijke buurt? Neem contact met ons op voor een bezichtiging. Wij laten je graag kennismaken met deze woning.