Oudesaag 14, Steenbergen 4651ZH
109m2 Woonoppervlakte
140m2 Perceeloppervlakte
4 Slaapkamers
B
€ 319.000
€ 2.927 per m2
Delen
Omschrijving
AANVRAGEN VOOR EEN BEZICHTIGING BIJ VOORKEUR VIA FUNDA/MAIL.
INTRODUCTIE
Wat een plaatje is deze instapklare (her)starters woning in Steenbergen-Noord!
Deze moderne hoekwoning heeft alles wat je zoekt. Een prachtige keuken, moderne badkamer, 3 slaapkamers, een open zolder (hier kunnen 2 slaapkamers gecreëerd worden), energielabel B, vloerverwarming beneden….deze woning heeft het allemaal. Last but not least is de woning voorzien van kunststof kozijnen en rolluiken en kun je van het zonnetje genieten in een heerlijke achtertuin met zowel bestrating als gras.
Dit is de ideale plek voor jou en je (toekomstige) gezin!
Steenbergen-Noord is een kindvriendelijke en rustige wijk. Alles wat je nodig hebt, zoals winkels, scholen en openbaar vervoer, is dichtbij. Bovendien is de wijk omgeven door veel groen en heb je voldoende parkeergelegenheid voor de deur.
Steenbergen is een oude vestingstad en maakt onderdeel uit van de West Brabantse Waterlinie. Dit sfeervolle stadje is centraal gelegen ten opzichte van Rotterdam (de Randstad) , Zeeland en Antwerpen.
Klinkt dit als jouw nieuwe thuis? Maak dan snel een afspraak voor een bezichtiging!
INDELING
Begane grond;
Je komt binnen in de hal, waar je meteen toegang hebt tot de meterkast, het toilet, de trapopgang naar de eerste verdieping en natuurlijk de woonkamer.
Het toilet is deels betegeld en voorzien van een zwevend toilet en een fonteintje.
Als je de woonkamer binnen stapt wordt je aangenaam verrast door een moderne living met een rustige en fijne sfeer. De grote raampartij en loopdeur naar de achtertuin zorgen voor een fijne lichtinval. De trapkast zorgt voor veel extra bergruimte.
De woonkamer staat in open verbinding met de halfopen keuken.
De keuken is recent (2023) vernieuwd en helemaal volgens de trends van nu. In deze keuken vind je alles wat je nodig hebt; een vaatwasser, oven, inductiekookplaat, afzuigkap, koelkast en diepvries.
De benedenverdieping is voorzien van een tegelvloer met vloerverwarming en zorgt voor een heerlijk comfortabel gevoel.
Eerste verdieping;
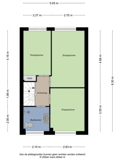
Op de eerste verdieping vind je naast de overloop 3 ruime slaapkamers en de badkamer. De overloop en slaapkamers zijn voorzien van een laminaatvloer.
De volledig betegelde badkamer is uitgerust met een toilet, inloopdouche, wastafelmeubel en een praktische bergkast.
Tweede verdieping;
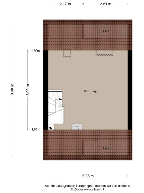
De tweede verdieping is een ruime open zolder, perfect voor extra opbergruimte of het creëren van één of twee extra slaapkamers. Ook vind je hier de aansluiting voor de wasmachine.
Deze ruimte is bijvoorbeeld ook perfect te gebruiken als hobbyruimte of speelzolder.
Buitenruimte;
De achtertuin is een fijne plek om te ontspannen, met zowel bestrating als gras.
Via de achterom heb je ook toegang tot de tuin, en er is een handige berging voor fietsen of tuingereedschap.
BIJZONDERHEDEN
- Instapklare hoekwoning;
- Bouwjaar: 1982;
- Kindvriendelijke groene wijk;
- Ruime achtertuin met achterom en berging;
- Voldoende parkeergelegenheid;
- Trendy en luxe keuken (2023)
- 3 slaapkamers;
- Ruime open zolder;
- Kunststof kozijnen;
- Volledig voorzien van rolluiken;
- Energielabel B;
- Tegelvloer met vloerverwarming op de begane grond.
BEZICHTIGINGEN EN BIEDINGEN:
De bezichtigingen vinden op afspraak plaats.
Bieden en wonen verkoopt deze woning via een transparant biedproces.
Alle biedingen van kandidaat-kopers worden automatisch vastgelegd in een geanonimiseerd biedlogboek. Het biedlogboek bevat alle biedingen met tijdstip van ontvangst en eventuele voorbehouden.
Tijdens de bezichtiging zullen wij je uitgebreid informeren over de werking van onze biedingsprocedure.
Op de Bieden en Wonen website kun je additionele informatie inzien of downloaden. Informatie over het biedproces wordt getoond op de website van Biedenenwonen.nl
Deze tekst is door ons kantoor met de meeste zorg samengesteld aan de hand van de door de verkoper aan ons ter hand gestelde gegevens en tekeningen. Derhalve kunnen wij geen garanties verstrekken, noch kunnen wij op enigerlei wijze eventuele aansprakelijkheid voor deze gegevens aanvaarden.
INTRODUCTIE
Wat een plaatje is deze instapklare (her)starters woning in Steenbergen-Noord!
Deze moderne hoekwoning heeft alles wat je zoekt. Een prachtige keuken, moderne badkamer, 3 slaapkamers, een open zolder (hier kunnen 2 slaapkamers gecreëerd worden), energielabel B, vloerverwarming beneden….deze woning heeft het allemaal. Last but not least is de woning voorzien van kunststof kozijnen en rolluiken en kun je van het zonnetje genieten in een heerlijke achtertuin met zowel bestrating als gras.
Dit is de ideale plek voor jou en je (toekomstige) gezin!
Steenbergen-Noord is een kindvriendelijke en rustige wijk. Alles wat je nodig hebt, zoals winkels, scholen en openbaar vervoer, is dichtbij. Bovendien is de wijk omgeven door veel groen en heb je voldoende parkeergelegenheid voor de deur.
Steenbergen is een oude vestingstad en maakt onderdeel uit van de West Brabantse Waterlinie. Dit sfeervolle stadje is centraal gelegen ten opzichte van Rotterdam (de Randstad) , Zeeland en Antwerpen.
Klinkt dit als jouw nieuwe thuis? Maak dan snel een afspraak voor een bezichtiging!
INDELING
Begane grond;
Je komt binnen in de hal, waar je meteen toegang hebt tot de meterkast, het toilet, de trapopgang naar de eerste verdieping en natuurlijk de woonkamer.
Het toilet is deels betegeld en voorzien van een zwevend toilet en een fonteintje.
Als je de woonkamer binnen stapt wordt je aangenaam verrast door een moderne living met een rustige en fijne sfeer. De grote raampartij en loopdeur naar de achtertuin zorgen voor een fijne lichtinval. De trapkast zorgt voor veel extra bergruimte.
De woonkamer staat in open verbinding met de halfopen keuken.
De keuken is recent (2023) vernieuwd en helemaal volgens de trends van nu. In deze keuken vind je alles wat je nodig hebt; een vaatwasser, oven, inductiekookplaat, afzuigkap, koelkast en diepvries.
De benedenverdieping is voorzien van een tegelvloer met vloerverwarming en zorgt voor een heerlijk comfortabel gevoel.
Eerste verdieping;
Op de eerste verdieping vind je naast de overloop 3 ruime slaapkamers en de badkamer. De overloop en slaapkamers zijn voorzien van een laminaatvloer.
De volledig betegelde badkamer is uitgerust met een toilet, inloopdouche, wastafelmeubel en een praktische bergkast.
Tweede verdieping;
De tweede verdieping is een ruime open zolder, perfect voor extra opbergruimte of het creëren van één of twee extra slaapkamers. Ook vind je hier de aansluiting voor de wasmachine.
Deze ruimte is bijvoorbeeld ook perfect te gebruiken als hobbyruimte of speelzolder.
Buitenruimte;
De achtertuin is een fijne plek om te ontspannen, met zowel bestrating als gras.
Via de achterom heb je ook toegang tot de tuin, en er is een handige berging voor fietsen of tuingereedschap.
BIJZONDERHEDEN
- Instapklare hoekwoning;
- Bouwjaar: 1982;
- Kindvriendelijke groene wijk;
- Ruime achtertuin met achterom en berging;
- Voldoende parkeergelegenheid;
- Trendy en luxe keuken (2023)
- 3 slaapkamers;
- Ruime open zolder;
- Kunststof kozijnen;
- Volledig voorzien van rolluiken;
- Energielabel B;
- Tegelvloer met vloerverwarming op de begane grond.
BEZICHTIGINGEN EN BIEDINGEN:
De bezichtigingen vinden op afspraak plaats.
Bieden en wonen verkoopt deze woning via een transparant biedproces.
Alle biedingen van kandidaat-kopers worden automatisch vastgelegd in een geanonimiseerd biedlogboek. Het biedlogboek bevat alle biedingen met tijdstip van ontvangst en eventuele voorbehouden.
Tijdens de bezichtiging zullen wij je uitgebreid informeren over de werking van onze biedingsprocedure.
Op de Bieden en Wonen website kun je additionele informatie inzien of downloaden. Informatie over het biedproces wordt getoond op de website van Biedenenwonen.nl
Deze tekst is door ons kantoor met de meeste zorg samengesteld aan de hand van de door de verkoper aan ons ter hand gestelde gegevens en tekeningen. Derhalve kunnen wij geen garanties verstrekken, noch kunnen wij op enigerlei wijze eventuele aansprakelijkheid voor deze gegevens aanvaarden.
Aanvragen bezichtiging
Verkocht
Soort
Traditioneel bieden
Vanaf prijs
€ 319.000
Biedronde sluit
29-10-2024 10:36